Renovated & Ready To Go
PRIVATE VIEWINGS WELCOMED
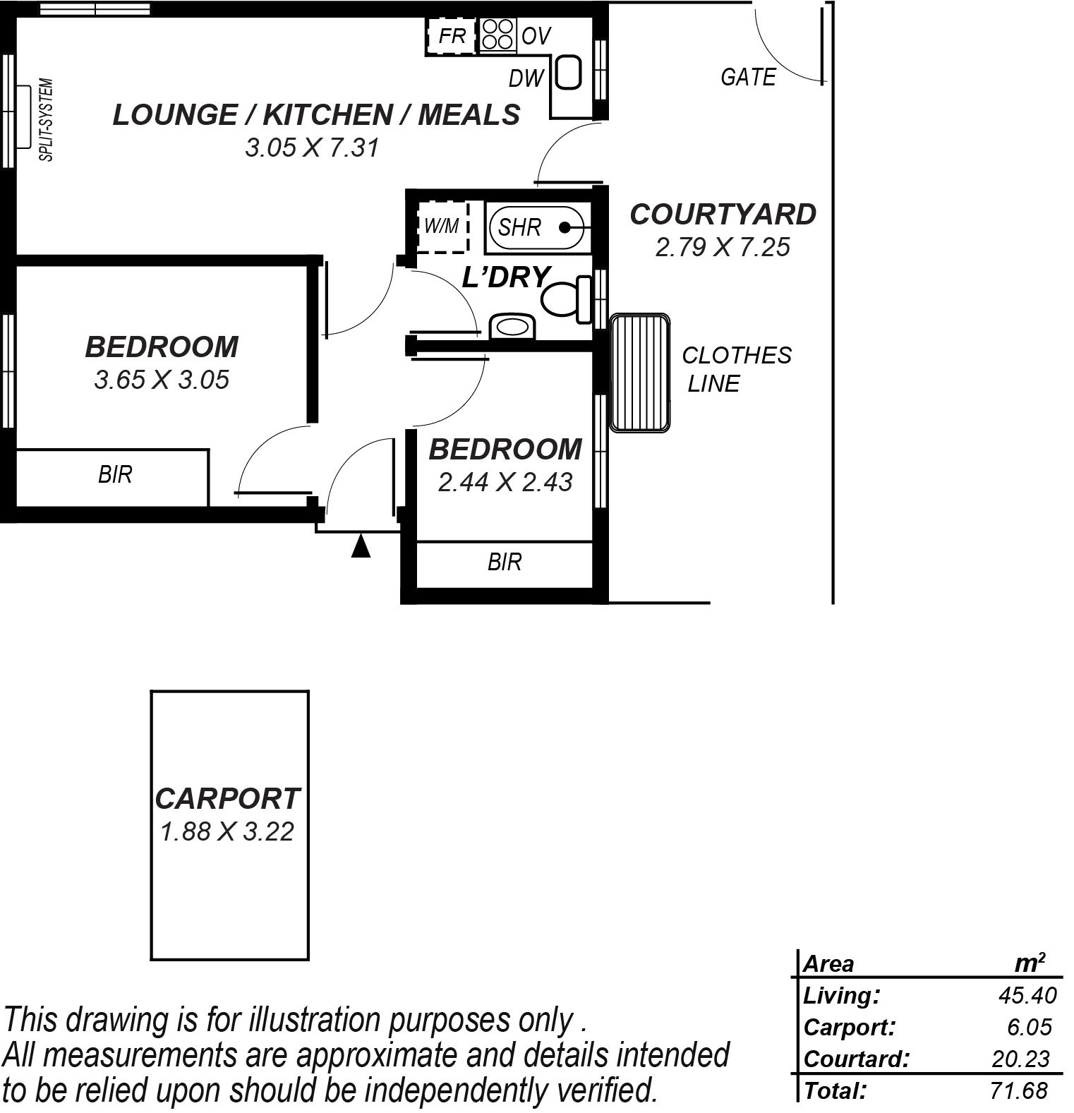
Renovated and upgraded for the purpose and intention of being a long term investment property, this 2 bedroom unit in the much sought after suburb of Torrens Park. Unit 1/1 Brook Street is low maintenance, neat and homely, situated conveniently between the city and the hills.
Some of its other features include:
- Open plan living, dining and kitchen area
- Modern kitchen with great storage and dishwasher
- Well sized bedrooms with both having built-in robes
- Split reverse cycle air conditioner
- New security blinds
- A fantastic courtyard to the back!
- Modern fixtures and fittings
- Solid brick
This home has been recently recognised by the Centre of Liveability (endorsed by the CSIRO), for its features that make it healthy, efficient, comfortable and connected to the community and offer the opportunity to the occupant to reduce their running costs and increase comfort if the home is utilised correctly.
Walk to train and buses, feel at ease knowing you are only minutes from Mitcham Shopping Centre, supermarkets, cinema complex and other amenities.
If you have any questions or would like to organise a private viewing, please do not hesitate to contact Rachel Lawrie of 0428 882 864 rachel.lawrie@raywhite.com or Pan Katranis 0422 625 486 RLA 283760
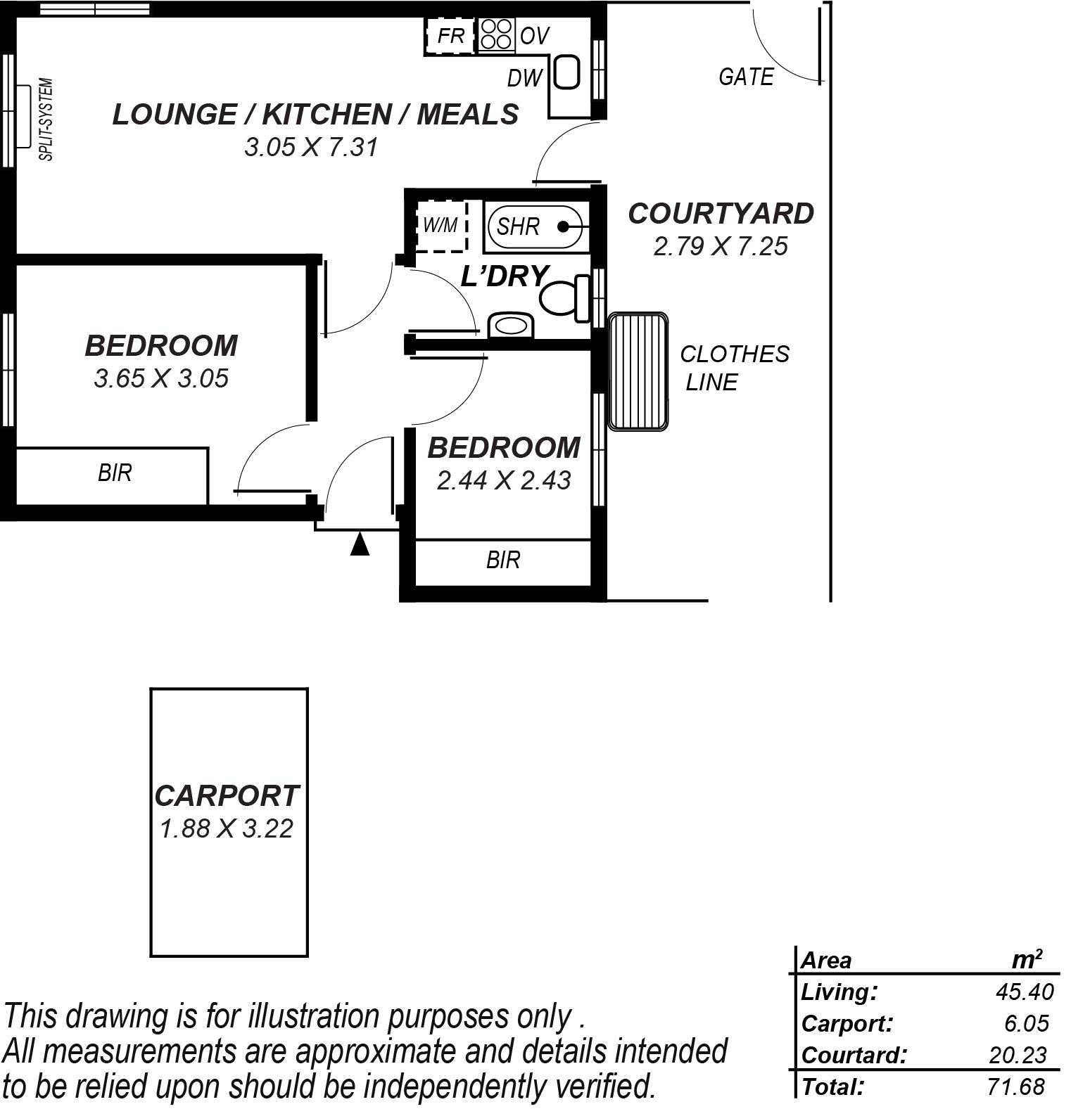
Renovated and upgraded for the purpose and intention of being a long term investment property, this 2 bedroom unit in the much sought after suburb of Torrens Park. Unit 1/1 Brook Street is low maintenance, neat and homely, situated conveniently between the city and the hills.
Some of its other features include:
- Open plan living, dining and kitchen area
- Modern kitchen with great storage and dishwasher
- Well sized bedrooms with both having built-in robes
- Split reverse cycle air conditioner
- New security blinds
- A fantastic courtyard to the back!
- Modern fixtures and fittings
- Solid brick
This home has been recently recognised by the Centre of Liveability (endorsed by the CSIRO), for its features that make it healthy, efficient, comfortable and connected to the community and offer the opportunity to the occupant to reduce their running costs and increase comfort if the home is utilised correctly.
Walk to train and buses, feel at ease knowing you are only minutes from Mitcham Shopping Centre, supermarkets, cinema complex and other amenities.
If you have any questions or would like to organise a private viewing, please do not hesitate to contact Rachel Lawrie of 0428 882 864 rachel.lawrie@raywhite.com or Pan Katranis 0422 625 486 RLA 283760