Cosy Cottage - Neat & Complete (No Pets)
BOOK YOUR INSPECTION ONLINE:
Send an enquiry using the "Email Agent" button and we will instantly respond with all of the available inspection times. Alternatively, go to our website raywhitenorwood.com.au and press the BOOK INSPECTION button to register for a time that suits you.
All information provided has been obtained from sources we believe to be accurate, however, we cannot guarantee the information is accurate and we accept no liability for any errors or omissions (including but not limited to a property's land size, floor plans and size, building age and condition, inclusions, exclusion, omission) Interested parties should make their own enquiries and obtain their own legal advice. As well as all parties must view the property in person to make sure it reflects the list of inclusions listed in this ad.
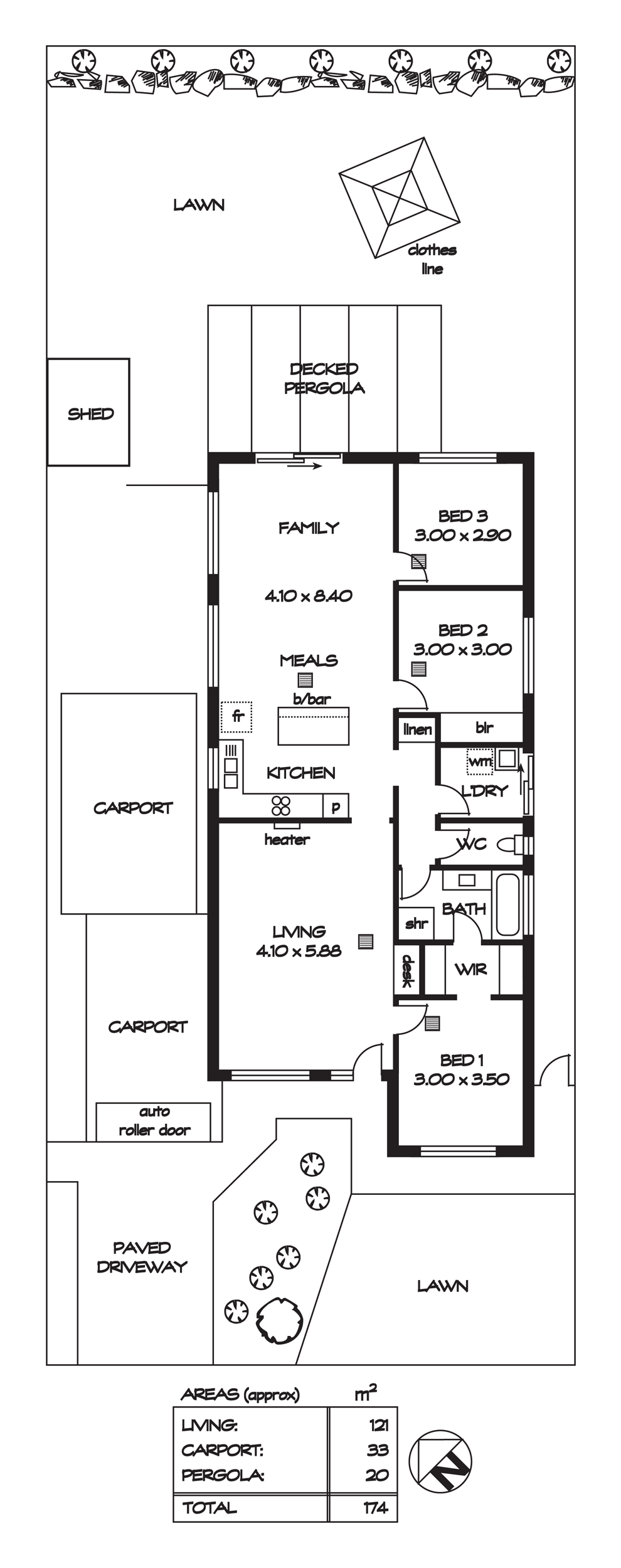
A great location in the Pine Lakes' development, only 200 metres from the parklands, lake and playground of AGH Cos Reserve, and sited in a low traffic family-friendly street, this cosy cottage offers comfortable contemporary accommodation across a spacious 3 bedroom design where 2 living areas, outdoor entertaining and considerable carporting combine into a complete, well maintained residence that is bound to impress.
Step inside and enjoy the neutral colour scheme, crisp floating floors and bright spacious living areas, flowing from a generous lounge with picture windows, through to a combined kitchen, meals and family room. Cook for family and friends as you entertain with this fabulous kitchen offering feature stone splashbacks, timber benchtops, stainless steel oven & cooktop, crisp white cabinetry, island breakfast bar and double sink.
Step outdoors and dine alfresco style on a Merbau timber deck with opaque pergola over. A generous rear yard will provide ample space for the kids to play, complete with established gardens beds.
All 3 bedrooms are double bed capable with the master bedroom offering a walk-in robe and direct access to a sparkling main bathroom. Bedroom 2 offers a built-in robe while bedroom 3 has views over the rear yard. A generous laundry and separate toilet complete the interior.
A two car carport is neatly tucked behind a secure automatic roller door, along with room to park a third vehicle, while a tool shed allows extra space for garden storage.
Ducted evaporative cooling and a gas wall furnace will ensure a comfortable year-round environment.
Features:
* Cosy & complete home on generous 404m2 allotment
* Constructed in 1998 and now with contemporary upgrades
* Crisp floating floors and a bright neutral colour scheme
* Large lounge with ample natural light
* Combined kitchen, dining and family room
* Kitchen boasts feature stone splashbacks, timber benchtops, stainless steel oven & cooktop, crisp white cabinetry, island breakfast bar, double sink and Pura tap
* Family room with wall mount for television
* Merbau deck with opaque pergola over
* 3 Bedrooms, all double bed capable
* Master bedroom with walk-in robe and direct bathroom access
* Bedroom 2 with built-in robe
* Stylish bathroom with separate bath and shower plus upgraded vanity
* Separate toilet
* Bright laundry with exterior access
* Carporting for 2 cars behind an automatic roller door
* Further parking for another vehicle
* Garden shed
* Generous lawn covered rear yard
* Gas wall heater in living room
* Ducted evaporative cooling throughout
* Close to parks, schools and shopping
Perfectly located in a quiet street amongst other similar quality homes and with AGH Cox Reserve and open space just around the corner adjacent. Chesser St Reserve and The Little Para River Linear Park are also close by for your daily sport and recreation. Local shopping is nearby at either Martins Plaza or Hollywood Plaza. Local schools include Thomas More College, The Pines Primary School Salisbury Downs Primary, Riverdale Primary with Parafield Gardens Primary and Secondary Schools also within easy reach.
A great low maintenance home set in a desirable location - Be sure to inspect!
Bond - 6 weeks rent equivalent
Pets - No
Lease Term - 12+ months
Water Charges - All water usage and water supply
Furniture - Unfurnished
WOULD YOU LIKE TO VIEW THIS PROPERTY?
Please click the button "EMAIL AGENT or BOOK INSPECTION" and enter your details and we will instantly respond.
To avoid disappointment, we encourage you to register your interest so we can keep you informed during all stages of the leasing process. To apply for this property online please go to www.tenantoptions.com.au
Send an enquiry using the "Email Agent" button and we will instantly respond with all of the available inspection times. Alternatively, go to our website raywhitenorwood.com.au and press the BOOK INSPECTION button to register for a time that suits you.
All information provided has been obtained from sources we believe to be accurate, however, we cannot guarantee the information is accurate and we accept no liability for any errors or omissions (including but not limited to a property's land size, floor plans and size, building age and condition, inclusions, exclusion, omission) Interested parties should make their own enquiries and obtain their own legal advice. As well as all parties must view the property in person to make sure it reflects the list of inclusions listed in this ad.
A great location in the Pine Lakes' development, only 200 metres from the parklands, lake and playground of AGH Cos Reserve, and sited in a low traffic family-friendly street, this cosy cottage offers comfortable contemporary accommodation across a spacious 3 bedroom design where 2 living areas, outdoor entertaining and considerable carporting combine into a complete, well maintained residence that is bound to impress.
Step inside and enjoy the neutral colour scheme, crisp floating floors and bright spacious living areas, flowing from a generous lounge with picture windows, through to a combined kitchen, meals and family room. Cook for family and friends as you entertain with this fabulous kitchen offering feature stone splashbacks, timber benchtops, stainless steel oven & cooktop, crisp white cabinetry, island breakfast bar and double sink.
Step outdoors and dine alfresco style on a Merbau timber deck with opaque pergola over. A generous rear yard will provide ample space for the kids to play, complete with established gardens beds.
All 3 bedrooms are double bed capable with the master bedroom offering a walk-in robe and direct access to a sparkling main bathroom. Bedroom 2 offers a built-in robe while bedroom 3 has views over the rear yard. A generous laundry and separate toilet complete the interior.
A two car carport is neatly tucked behind a secure automatic roller door, along with room to park a third vehicle, while a tool shed allows extra space for garden storage.
Ducted evaporative cooling and a gas wall furnace will ensure a comfortable year-round environment.
Features:
* Cosy & complete home on generous 404m2 allotment
* Constructed in 1998 and now with contemporary upgrades
* Crisp floating floors and a bright neutral colour scheme
* Large lounge with ample natural light
* Combined kitchen, dining and family room
* Kitchen boasts feature stone splashbacks, timber benchtops, stainless steel oven & cooktop, crisp white cabinetry, island breakfast bar, double sink and Pura tap
* Family room with wall mount for television
* Merbau deck with opaque pergola over
* 3 Bedrooms, all double bed capable
* Master bedroom with walk-in robe and direct bathroom access
* Bedroom 2 with built-in robe
* Stylish bathroom with separate bath and shower plus upgraded vanity
* Separate toilet
* Bright laundry with exterior access
* Carporting for 2 cars behind an automatic roller door
* Further parking for another vehicle
* Garden shed
* Generous lawn covered rear yard
* Gas wall heater in living room
* Ducted evaporative cooling throughout
* Close to parks, schools and shopping
Perfectly located in a quiet street amongst other similar quality homes and with AGH Cox Reserve and open space just around the corner adjacent. Chesser St Reserve and The Little Para River Linear Park are also close by for your daily sport and recreation. Local shopping is nearby at either Martins Plaza or Hollywood Plaza. Local schools include Thomas More College, The Pines Primary School Salisbury Downs Primary, Riverdale Primary with Parafield Gardens Primary and Secondary Schools also within easy reach.
A great low maintenance home set in a desirable location - Be sure to inspect!
Bond - 6 weeks rent equivalent
Pets - No
Lease Term - 12+ months
Water Charges - All water usage and water supply
Furniture - Unfurnished
WOULD YOU LIKE TO VIEW THIS PROPERTY?
Please click the button "EMAIL AGENT or BOOK INSPECTION" and enter your details and we will instantly respond.
To avoid disappointment, we encourage you to register your interest so we can keep you informed during all stages of the leasing process. To apply for this property online please go to www.tenantoptions.com.au