Property main details

4
1
3

Home For Sale

  • Sold
  • House

Specifications

  • Property Type
    House
  • Land
    975 m2

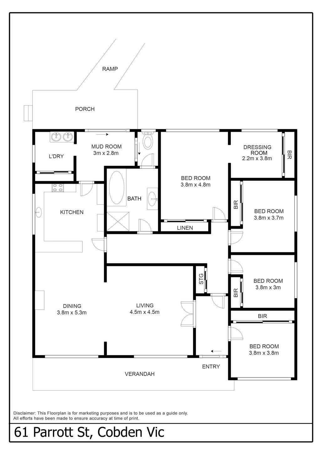
You'll be hit for six by this family home!

On offer for the first time since being built in 1955, this home is testament to the quality of work by the owner who as a Master Builder served the community for many years. Still maintaining many of it's original features including natural timber veneers, vertical timber panelled feature walls, frosted glass doors and a St George oven/cooktop(the Meile of its era). Set on a generous acre corner allotment this family home has been lovingly maintained inside and out, giving you the opportunity to step in and purchase without lifting a finger. All 4 bedrooms have built in robes with the master featuring a generous dressing room, giving the ideal opportunity for an Ensuite. The open plan kitchen/dinning and living area have a North facing aspect and thanks to floor to ceiling windows(tinted) give a fantastic outlook onto the manicured gardens and streetscape. A spacious bathroom is central to all bedrooms and storage is not an issue thanks to a large linen press in the hallway. Features such as natural gas ducted heating, split system A/C, newly carpeted and painted through out are additions which makes for comfortable family living. From the rear of the home you step onto a private paved courtyard that gives direct access to a double carport and separate 4m x 3.5m bungalow/multipurpose room giving the ideal location for the hobby of your choice. Set at the rear of the property is a 7m x 4.5m colourbond garage with automatic roller door with the backyard also having rear access. With the home being so well presented and cared for, coupled with an active real estate market, we anticipate this family home won't be on the market for long! Therefore don't delay in arranging your private inspection today!

All information about the property has been provided to Ray White by third parties. Ray White has not verified the information and does not warrant its accuracy or completeness. Parties should make and rely on their own enquiries in relation to the property.

Due diligence checklist for home and residential property buyers.

Get in touch

We'd love to hear from you

If you're interested in looking at properties around the area, or want the latest information on the market in your neighbourhood, we'd love to hear from you. 

61 Parrott Street Cobden 3266, Victoria
Back to top