Property main details

4

Commercial

  • Sold
  • Retail

Specifications

  • Property Type
    Retail
  • Land
    2260 m2

Fantastic Investment Opportunity in Popular Seaside Tourist Destination

With interest rates at all time lows, now is the time to invest in this award winning bakery. With long term lessee, this well known bakery is a popular destination for those visiting the town or just cruising past.
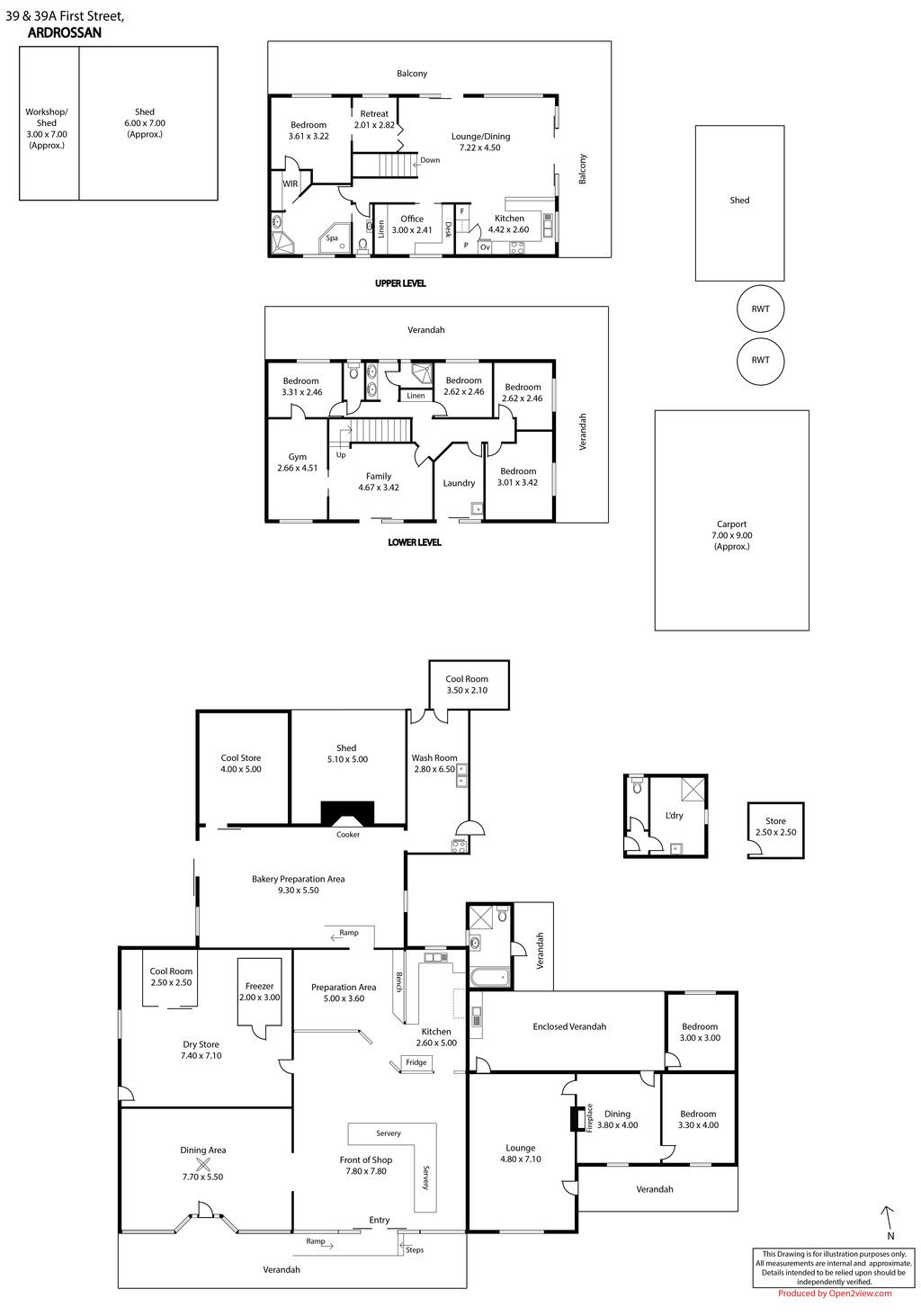
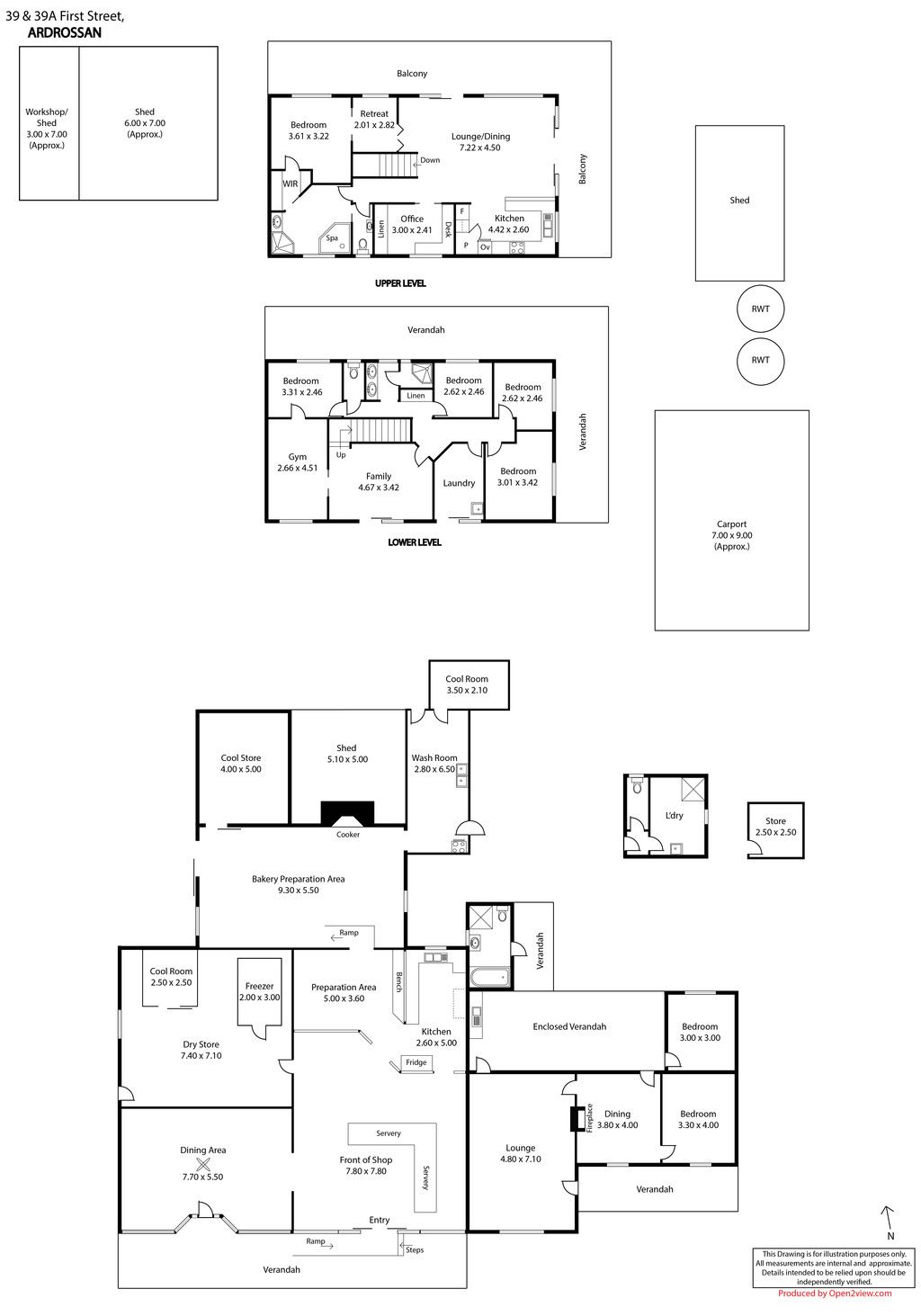
Commercial shop comprises modern sales area, sit down caf, kitchen, preparation area, bakehouse with brick oven and storeroom. Attached cottage comprises 3 main rooms and bathroom.
Along with the attached bakers residence, there is also a modern 2 storey, 5 bedroom, 2 bathroom home offering excellent sea views across the gulf. Currently tenanted, features include fully enclosed yard with private parking in impressive 3 bay carport, built in or walk through robes to 4 of the bedrooms, ensuite, ducted reverse cycle air conditioning, spacious open kitchen, living and dining area, office, downstairs lounge and expansive balcony to take advantage of the views.

Additional features include 3 coolrooms, approximately 45,000 litres of rainwater plumbed to home and evaporative air conditioning to shop.

Contact Scott Bockmann at our Ray White Yorke Peninsula Ardrossan Office on 0427 519 628 for further details

Get in touch

We'd love to hear from you

If you're interested in looking at properties around the area, or want the latest information on the market in your neighbourhood, we'd love to hear from you. 

39 & 39A First Street Ardrossan 5571, South Australia
Back to top